公司新闻

 广一浅析高位消防水箱

广一浅析高位消防水箱

1、临时高压消防给水系统的高位消防水箱的有效容积应满足初期火灾消防用水量的要求,并应符合下列规定: 1)一类高层公共建筑不应小于36m3,但当建筑高度大于100m时不应小于50m3,当建筑高度大于...
 多级管道泵在日常生活中的应用

多级管道泵在日常生活中的应用

多级管道泵适用于高层建筑增压送水、园林喷灌、冷却塔上水、远距离输水、空调、制冷冲洗、浴室等冷;暖水循环加压。使用温度80℃以下。...
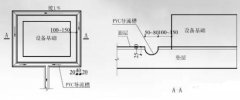
 水泵基础导流槽样板做法步骤

水泵基础导流槽样板做法步骤

水泵基础导流槽样板做法步骤。...
 立式长轴泵与液下泵的区别

立式长轴泵与液下泵的区别

选择水泵的时候,可能会有这么一个疑问,立式长轴泵与液下泵有什么区别,下面广一水泵就来解答这个问题。...
 不锈钢潜水泵的7个优势

不锈钢潜水泵的7个优势

不锈钢潜水泵是一种具有耐腐蚀、耐高温、扬程高、流量大等特点的潜水泵。广泛应用于矿山、工厂、化工现场、医药、食品加工等领域。...
 自动给水设备所具有的优势说明

自动给水设备所具有的优势说明

自动给水设备所具有的优势: 1、节电节能 2、消除了地下水池的二次污染 3、节水、减少事故隐患 4、节省投资,减少占地,安装、使用、检修方便 5、自动化程度高,运行可靠,管理方便...

Copyright © 2010-2020 广一泵业集团有限公司版权所有